
okáwímáw askiy míkiwahp
Mother Earth Dwellings
a proud partnership with
Walk through our virtual tour to see the incredible features of the unique, energy efficient, Ready To Move,
Smart Green Humble Home.
Ready to get into your
Smart Green Humble Home?



Impressive Design
Abundance of natural light
Passive solar heating
Wood finished ceilings
Superior building envelope
Net Zero Ready options
Mother Earth Dwelling Models

30-100% more energy efficient than Canada's current National Energy Building Code
Select your Energy Efficiency Tier
Original
30% better
than NBC
Performance
50% better
than NBC
Net Zero-Ready
65% better
than NBC
Net Zero (includes solar)
100% better
than NBC
SGHH 01 - The Felix
806 sq ft
2 bedroom
1 bath
Special Features:
-
compact design
-
vaulted ceiling in living room
-
optional tongue and groove pine ceilings
SGHH 02 - The Geo
1026 sq ft
2 or 3 bedroom
1 full bath
4 bedroom
2 bath
OR
Special Features:
-
compact design
-
vaulted ceiling in living room
-
optional tongue and groove pine ceilings
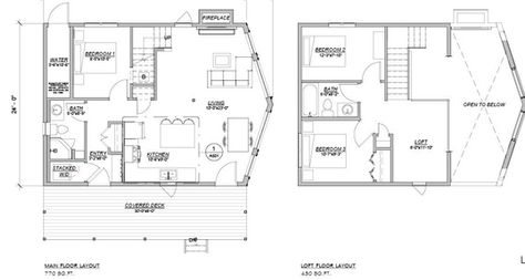
SGHH 03 The Modified Casta
920 sq ft
2 or 3 bedroom
1 bath
Special Features:
-
spacious kitchen
-
fireplace
-
loft space
-
vaulted ceiling in living room
-
optional tongue and groove pine ceilings
SGHH 04 The Naturae
955 sq ft
3 bedrooms
2 full baths
Special Features:
-
open concept kitchen
-
master bedroom with ensuite
-
covered deck area at both entrances
-
vaulted ceiling in living room
-
optional tongue and groove pine ceilings
SGHH 05 The AER
1250 sq ft
3 or 4 bedrooms
2 full baths
Special Features:
-
large angled front windows
-
fireplace
-
loft space
-
vaulted ceiling in living room
-
optional tongue and groove pine ceilings
-
optional covered deck

Quality Architecture
Voce builds them humbly,
Vereco makes them Smart Green.
Our goal with the Smart Green Humble Home is to create homes that are compact in design, attractive inside and out,
and customizable to suit your design style.
We understand the importance of providing energy efficient housing options that are affordable, practical,
and accessible to everyone.


Smart Green Features
These Smart Green Humble Homes are equipped with energy star appliances, LED lights, and roofs that are solar panel ready.
With a superior building envelope, these homes are super insulated, and extremely air tight.
With Vereco's high level Passive House energy modelling, we can show you just how much money you will be saving in energy costs compared to a standard constructed home.
Have peace of mind knowing your home can be moved in case of an environmental emergency, or if you just simply found a better plot of land to settle into.
The Smart Green Humble Home has you covered.
Frequently Asked Questions
When can I expect it?
Once you've filled out your application we'll reach out to book a virtual discovery call with you. Next we walk you through the financial and administrative process, then you you move onto selecting your interior and exterior finishes (if you're going the 'As Is' pathway), along with the energy tier you prefer.
You can expect your Smart Green Humble Home, delivered to your lot and "plugged in" in as little as a few months!
Does it cost more than a typical standard constructed home?
With our enhanced, super insulated building envelope it costs about 10% more in building materials, however you will save between 50%-70% in energy costs.
What does it sit on?
No need for a traditional basement foundation, we've saved you $100,000 in foundation costs. The Smart Green Humble Homes are designed to be placed on screw piles, we can install the piles for you by request. (SGHH can also be installed on a foundation if that is your preference.)
Are there financing options?
Yes! We have a variety of finance options available, plus these homes are approved for Canada Mortgage Housing Corporation (CMHC) with as little as 5% down for 1st and 2nd Home Buyers.
































































